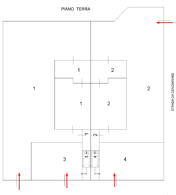
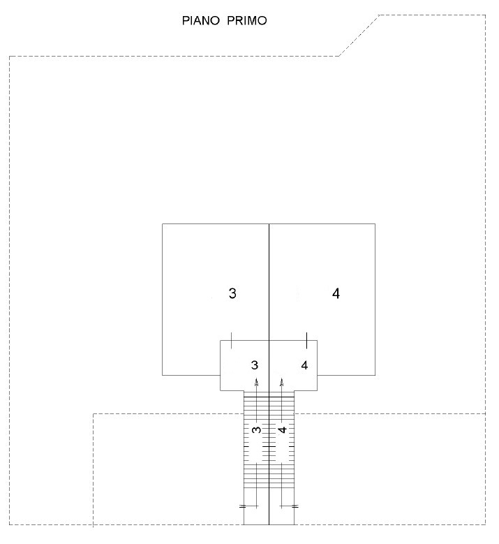
In Pantanagianni, Carovigno, 300 m from the sea, housing under construction. Planned on two levels: two apartments of approx. 80 m2 on the ground floor with adjacent area of approx. 300 m2;
two apartments of approx. 70 m2 on the first floor with adjacent area of approx. 70 m2. Possibility of conversion to form a single independent housing unit on the ground floor, first floor or connecting the ground floor to the first floor by internal staircase. Sale of entire building either under construction or completed.